Ralph Appart-Hôtel :
L'Art d'Habiter l'Élégance.
La Genèse : Un Projet d'Excellence à LISAA
Ce projet représente l'aboutissement de ma reconversion professionnelle : il s'agit de mon Projet de Fin d'Études (PFE) présenté devant le jury de LISAA pour valider mon diplôme d'architecte d'intérieur. Conçu pour un appartement résidentiel en rez-de-jardin, ce travail est une démonstration complète de ma capacité à mener une étude architecturale de A à Z. L'enjeu était de transformer un habitat privé en une expérience résidentielle d'exception, alliant le confort domestique aux codes prestigieux de l'hôtellerie de luxe.
Le Concept : L'Art d'Habiter l'Élégance
L'intention poétique puise sa source dans l'univers signature de Ralph Lauren. J'ai imaginé une atmosphère feutrée, évoquant l'élégance intemporelle des clubs new-yorkais. Le parcours narratif s'articule autour d'un meuble sculptural sur mesure, dessiné à la main, qui fait office de lobby d'accueil et de table dînatoire. Entre cuir patiné, boiseries sombres et un 'gallery wall' soigneusement composé, chaque détail a été pensé pour redécouvrir l'harmonie de l'appartement. Ici, le luxe s'exprime par la justesse : j'ai privilégié une décoration modérée mais hautement stratégique pour magnifier l'espace sans le saturer.
Le Modus Operandi : La Maîtrise d'Œuvre Totale
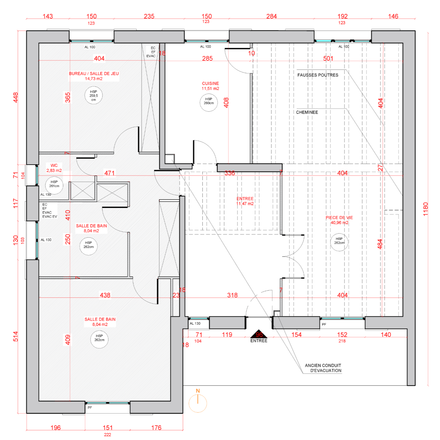
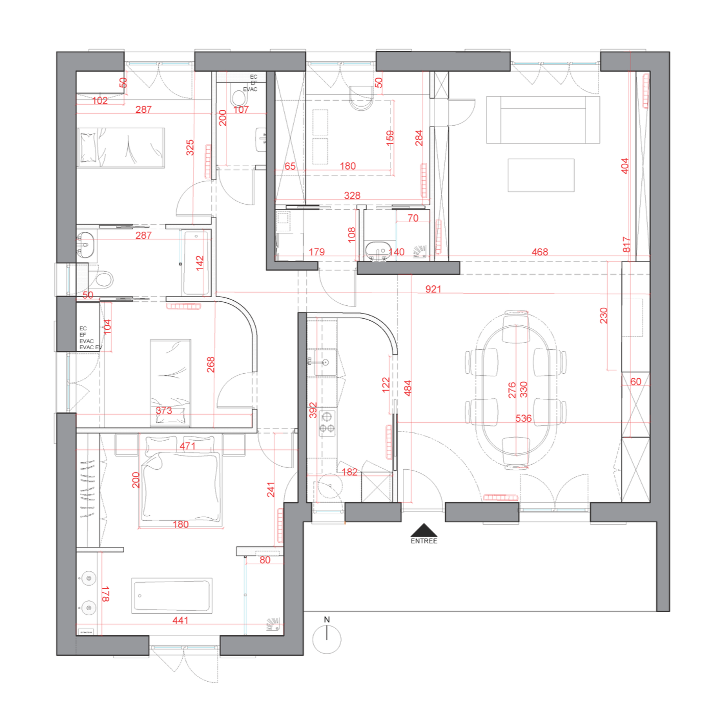
"Au-delà de l'esthétique, ce dossier d'examen valide ma maîtrise technique et budgétaire. J'ai réalisé l'intégralité du dossier technique de consultation : plans de démolition, cloisonnement, faux-plafonds, calepinage, électricité et plomberie. Pour garantir la viabilité du projet, j'ai établi un descriptif sommaire exhaustif (sourcing complet des luminaires, menuiseries et sanitaires) ainsi qu'un planning de chantier et un estimatif général des travaux. Cette rigueur opérationnelle permet de concrétiser une vision luxueuse tout en respectant scrupuleusement les réalités financières et techniques d'un chantier."
Le Lobby :
Le Cœur de l’Habitat entre Scène et Réception
Véritable signature architecturale du projet, le lobby détourne les codes de l’hôtellerie pour les inviter au quotidien. La pièce centrale s'organise autour d'un îlot sculptural réalisé sur mesure en contreplaqué noyer. Couronné par une descente de plafond graphique qui délimite l’espace sans le cloisonner, cet ensemble a été pensé comme un lieu de rencontre polyvalent : il est à la fois bureau d’accueil, table dînatoire et espace de réception.
Le luxe se niche ici dans la continuité des matériaux. Au sol, la noblesse du PlanCeram dévoile une délicate veine verte ; un fil conducteur visuel qui se prolonge avec élégance jusque sur l'habillage de la cheminée. Ce dialogue entre le bois chaud et la pierre veinée installe une atmosphère à la fois feutrée et majestueuse, typique de l'esprit club qui définit cet appartement en rez-de-jardin.
L'Entrée en Scène : Le Lobby Confidentiel.
Pousser le lourd rideau de velours vert, c'est entrer dans un univers à part. Ce lobby est conçu comme un club privé, un havre de paix inspiré du "Quiet Luxury" new-yorkais. L'espace est dominé par le dialogue entre le noyer chaleureux et une pierre au veinage vert spectaculaire, qui habille l'îlot central et la cheminée magistrale. Au fond, un salon bibliothèque cosy, sous un plafond en bois, offre le refuge ultime pour lire au coin du feu, un verre de vin à la main.
La cuisine. Le Raffinement Dissimulé.
Conçue pour un appart-hôtel de standing, cette cuisine repense la frontière entre espace de service et lieu de réception. Pour ne pas troubler l'élégance du lobby, elle disparaît intégralement dans un volume architectural fort : un écrin de noyer aux courbes douces qui devient une signature visuelle de l'espace. Une fois ouverte, cette "boîte à bijoux" révèle un intérieur luxueux alliant bois, marbre et jeux de miroirs, offrant une fonctionnalité totale sans compromis esthétique.
Immersion Bleue : La Suite avec Vue.
Conçue comme une véritable expérience hôtelière, cette suite parentale abolit les frontières traditionnelles pour offrir un luxe absolu : celui de prendre son bain face à la nature. La baignoire îlot, véritable sculpture posée devant la grande baie vitrée donnant sur le jardin, est le point d'orgue de la pièce, surmontée d'un lustre magistral qui théâtralise l'espace.
L'ambiance est puissante, dominée par un bleu profond et un papier peint panoramique évoquant des vestiges de colonnades grecques, conférant une dimension presque onirique au lieu. Le noyer chaleureux vient tempérer cette audace chromatique, habillant le dry bar sur mesure, indispensable touche "appart-hôtel". Ouverte sur l'espace nuit et son lit Queen size, dotée d'une douche spacieuse et d'un dressing intégré, cette suite est une invitation à la détente contemplative.
Dossier de Consultation technique.

